Průřez návrhem od zadání až po předaní
Na teto stránce najdete zjednodušený průřez vypracovaným projektem (návrhem) od zadaní po předání, či realizaci. Jako příklad zde uvádím projekt Kuchyně.
Zkrácený seznam ideálního průběhu, který pak níže rozepisuji je tento:
- domluvení si schůzky
- první schůzka- zadaní a objednání projektu
- vypracovaní základních náhledů
- první konzultace základního návrhu- upřesňování
- další konzultace dle potřeby (počet není omezen)
- vypracovaní rozvržení instalací(voda, plyn, elektřina)
- vypracovaní popisu a kotovaní projektu
- vypracování cenové nabídky
- předání grafického návrhu
- v případě realizace podpis objednávky,smlouvy
- přesné zaměření na místě
- výroba a montáž
Sjednání schůzky.
Tato část není povinná, ale jelikož zadaní nebo konzultace projektu trvá přibližně hodinu, někdy i déle, předejdete tomu, že budete muset čekat na zákazníka před Vámi.
Standartní pracovní doba je uvedena v kontaktech. V případě, že Vám tato doba nevyhovuje se samozřejmě přizpůsobím Vašim potřebám a možnostem, proto mne neváhejte kontaktovat a domluvit se.
První schůzka zadání a objednání projektu (návrhu).
Na této schůzce si dále řekneme a prokonzultujeme veškeré potřebné informace ke zhotoveni návrhu. Řekneme si např. druh, množství a rozmístění spotřebičů. Projdeme si možnosti, materiály, základní rozmístění a představy, jak by měl vypadat konečný výsledek.Zadáme objednávku grafického návrhu.
Na tuto první schůzku by jste sebou měli přinést podklady potřebné k vypracovaní návrhu dle druhu zadání. Lze samozřejmě provést zaměření i přímo na místě. Uvedu zde příklad ideálních podkladů pro návrh kuchyně(toto platí i pro koupelny,obývací a dětské pokoje).
- okótovaný půdorys místnosti (ideálně celé místnosti ne jen nějakého rohu), ať už ručně zaměřený nebo ze stavební dokumentace.
- v případě, že jsou již hotové instalace zaměřit a okótovat i ty
- pokud je již hotová podlaha přinést vzorek nebo nafotit.
Příklad:
Vypracování základních náhledů.
Toto je činnost, při které dle Vašich podkladů zhotovím půdorys místností a začnu do něj vkládat základní objekty. Pokud se vyskytne nějaký problem, tak ho s Vámi okamžitě konzultuji, aby tento návrh odpovídal realitě.
První konzultace základního návrhu
Na teto konzultaci Vám ukáži první náhledy projektu, kde se vetšinou řeší rozmístění tech nejdůležitějších věcí, jako je rozmístění spotřebičů(zařizovacích předmětů, atd..) ty si projdeme a zkonzultujeme zda odpovídají možnostem a představám. Dokonzultujeme další detaily.Tato schůzka bývá často časově nejnáročnější, takže si na ni vyhraďte alespoň hodinu času.
Další konzultace dle potřeby
Jsou domlouvány podle rozpracovanosti a potřebnosti změn v projektu. Některé menší změny je možné provádět i po emailu nebo telefonu což ušetří hlavně Váš čas a vetšinou i peníze za cestu. Na těchto konzultacích se již řeší úplné detaily, jako jsou úchytky, druh skel, vnitřní vybavení, doplňky, druh baterie, atd...
Vypracovaní rozvržení instalací(voda, plyn, elektřina)
Vypracuji pro Vás technické rozměry a kóty pro rozvod vody, plynu, elektřiny, vzduchotechniky.
Příklad:
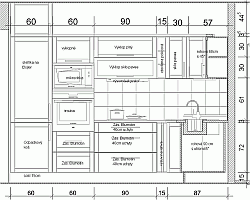
Vypracovaní popisu a kotovaní projektu
Vypracují technické náhledy s rozměry a popisem projektu.
Příklad:
Vypracování cenové nabídky
Vypracuji Vám kompletní cenovou nabídku na projekt.Zde kuchyně- nacenění kuchyňské linky, spotřebičů , doplňků ale i obkladů za kuch. linku, dlažby na podlahu,jídelního stolu, židlí, atd..
Příklad:
Předání grafického návrhu.
Jakmile je celý projekt hotov je zhotoveno předání grafického návrhu a tímto může naši spolupráci ukončit nebo pokud Vás zaujme naše cenová nabídka, budeme dále pokračovat v realizaci.
V případě realizace podpis objednávky,smlouvy.
Pokud je projekt realizován jsou v tomto bodě vyhotoveny, podepsány objednávky a smlouvy přímo s výrobci a dodavateli.
Přesné zaměření na místě.
Po podepsání smlouvy je projekt výrobcem ještě přesně zaměřen, tak aby nedošlo k nějakým rozdílům mezi návrhem a realitou. V případě rozdílu je tento rozdíl s Vámi konzultován a je navrženo řešení.
Výroba a montáž.
Tato konečná fáze probíhá přesně podle podmínek uvedených ve smlouvě s tím, že i nad touto části nadále dohlížím, aby bylo splněno a zrealizováno vše přesně, jak bylo navrženo k Vaši plné spokojenosti.




